| Type de bien batiment agroalimentaire |
| Foix (Ariège), France |
| Secteur d'activité - |
À vendre – Bâtiment agroalimentaire de 850 m² près de Foix – Ariège (09)
Foix (Ariège - Occitanie - France)
Batiment Agroalimentaire
Référence: AFR19393
ACHAT
Prix de vente Batiment: 500000.00 €Description du bien
Bâtiment agroalimentaire de 850 m² à vendre près de Foix
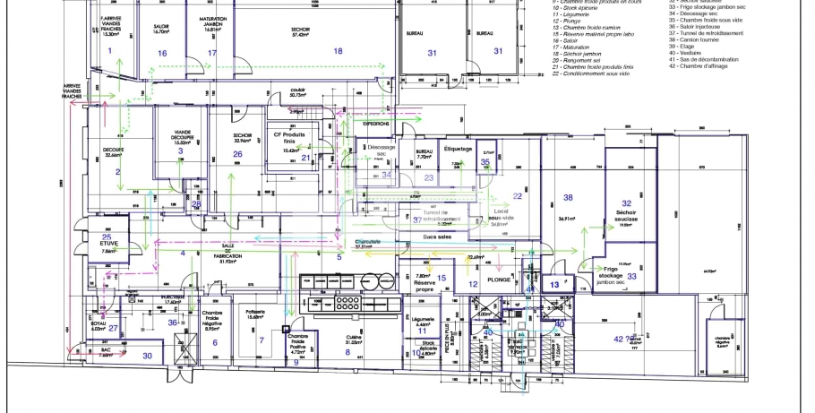
Cet établissement agroalimentaire de 850 m², anciennement exploité en boucherie-charcuterie, est aujourd'hui proposé à la vente. Situé à proximité de Foix, dans un territoire reconnu pour la qualité de ses filières agricoles et artisanales, il est particulièrement adapté à une reprise de l'activité existante ou à tout nouveau projet de transformation alimentaire.
Le site dispose de tous les espaces nécessaires à une activité agroalimentaire :
- 2 bureaux administratifs avec toiture neuve
- Salle de fabrication
- Cuisines professionnelles
- Chambres froides
- Séchoirs
- Espace d'étiquetage
- Zones techniques adaptées à la transformation alimentaire
Certains espaces restent modulables, permettant d'adapter facilement le bâtiment à différents projets : transformation de viande, conserverie, production artisanale, laboratoire agroalimentaire…
Le bâtiment est équipé de panneaux solaires et du matériel agroalimentaire peut également être acquis sur place.
Ce bâtiment agroalimentaire à vendre vous intéresse ?
Ce bien est proposé à la vente au prix de 500 000 €.
Si ce bien vous intéresse et que vous souhaitez obtenir plus d'informations, n'hésitez pas à contacter notre équipe qui se tient à votre disposition pour répondre à toutes vos questions.
Caractéristiques techniques
- Multimodalité Routier
- Température dirigée Non défini
Conditions financières
- Prix de vente Bâtiment 500000.00 €
Accès au site
-
Autoroutes
< 20min
A66
-
TER, RER, Tram, Métro
< 20min
Gare de Foix
-
Gare TGV
Entre 20min et 1h
Gare de Toulouse Matabiau
-
Aéroport
> 1h
Aéroport Toulouse Blagnac
-
Aéroport international
> 1h
Aéroport Toulouse Blagnac
Carte
Responsable implantation d’entreprises
Mégane COLAS
- Consultant en Développement Économique
- m.colas@geolink-expansion.com
- 04 65 84 01 52
Informations clés
- Type de bien batiment agroalimentaire
- Dernière mise à jour 16/03/2026
- Etat général des locaux très bon etat
- Surface minimum 850.00 m2
- Surface maximum 850.00 m2
Les biens similaires
Responsable implantation d’entreprises
Mégane COLAS
- Consultant en Développement Économique
- m.colas@geolink-expansion.com
- 04 65 84 01 52