| Type de bien entrepot |
| Auzainvilliers (Vosges), France |
| Secteur d'activité - |
À vendre – 2 plateformes logistiques de 15 000 et 70 000 m² dans la zone d’activité d’Auzainvilliers – Vosges (88)
Auzainvilliers (Vosges - Grand Est - France)
Entrepot
Référence: AFR19435
ACHAT
Description du bien
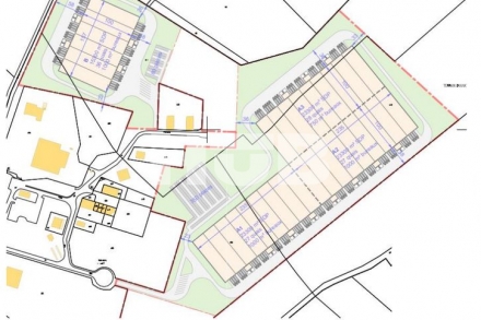
2 plateformes logistiques au sein de la ZA d’Auzainvilliers (88)
Implanté au sein de la zone d’activité d’Auzainvilliers, ce projet prévoit, à l’horizon 2028, le développement de deux plateformes logistiques d’une surface respective de 70 000 m² et 15 000 m². L’ensemble s’inscrit dans le cadre de la réglementation ICPE et vise une certification environnementale BREEAM, avec la possibilité d’intégrer un projet industriel selon les besoins.
Le site bénéficie d’un positionnement stratégique à proximité immédiate de l’A31, au cœur d’un territoire reconnu pour son potentiel logistique et énergétique, et s’inscrit dans un environnement dynamique marqué notamment par la présence d’une centrale photovoltaïque développée par Urbasolar.
Le projet s’étend sur une emprise foncière totale de 23 hectares. L’alimentation électrique est assurée avec une puissance de 2,3 MW. Situé en zone de Revitalisation Rurale, le site permet, sous conditions, de bénéficier d’exonérations d’impôts et de cotisations sociales.
Une localisation stratégique au cœur du Grand Est
Le site se situe à environ 50 minutes d’Épinal et à 2h30 de Paris en TGV. L’accès direct à l’A31 facilite les liaisons vers Nancy et Dijon, tandis que Contrexéville et Vittel sont accessibles en une dizaine de minutes. Le site profite également de la proximité de l’aéroport d’Épinal-Mirecourt, situé à environ 30 minutes.
Ces plateformes logistiques vous intéressent ?
Si ce bien vous intéresse et que vous souhaitez obtenir plus d'informations, n'hésitez pas à contacter notre équipe qui se tient à votre disposition pour répondre à toutes vos questions.
Caractéristiques techniques
- Multimodalité Routier
- Température dirigée Non défini
Conditions financières
Accès au site
-
Autoroutes
< 20min
Autoroute A31
-
TER, RER, Tram, Métro
< 20min
Gare de Vittel
-
Gare TGV
Entre 20min et 1h
Gare d'Épinal
-
Aéroport
Entre 20min et 1h
Aéroport d’Épinal-Mirecourt
-
Aéroport international
Entre 20min et 1h
Aéroport d’Épinal-Mirecourt
Carte
Responsable implantation d’entreprises
Mégane COLAS
- Consultant en Développement Économique
- m.colas@geolink-expansion.com
- 04 65 84 01 52
Informations clés
- Type de bien entrepot
- Dernière mise à jour 07/04/2026
- Etat général des locaux neuf
- Surface foncière 230000.00 m2
- Surface minimum 15000.00 m2
- Surface maximum 70000.00 m2
Les biens similaires
| Type de bien entrepot |
| Mattaincourt (Vosges), France |
| Secteur d'activité - |
Responsable implantation d’entreprises
Mégane COLAS
- Consultant en Développement Économique
- m.colas@geolink-expansion.com
- 04 65 84 01 52